top of page
intervento
luogo
anno
dimensione
progetto
collaboratori
committente
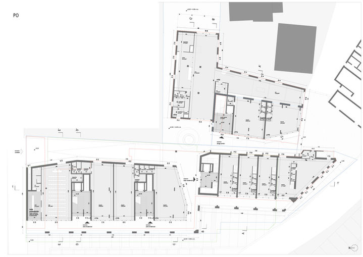
recupero
e cambio di destinazione d'uso
del complesso immobiliare
in piazza martiri della libertà
meolo
2019
2840 mq
alvise marzollo lucia ravagni
adolfo zanetti
alessandro danese
cooperativa meolese

bottom of page









